欢迎大家光临广州室内设计公司领头羊金牛装修设计公司
室内设计行业新闻
这里是装修设计专家金牛装饰设计公司的网站栏目内容页
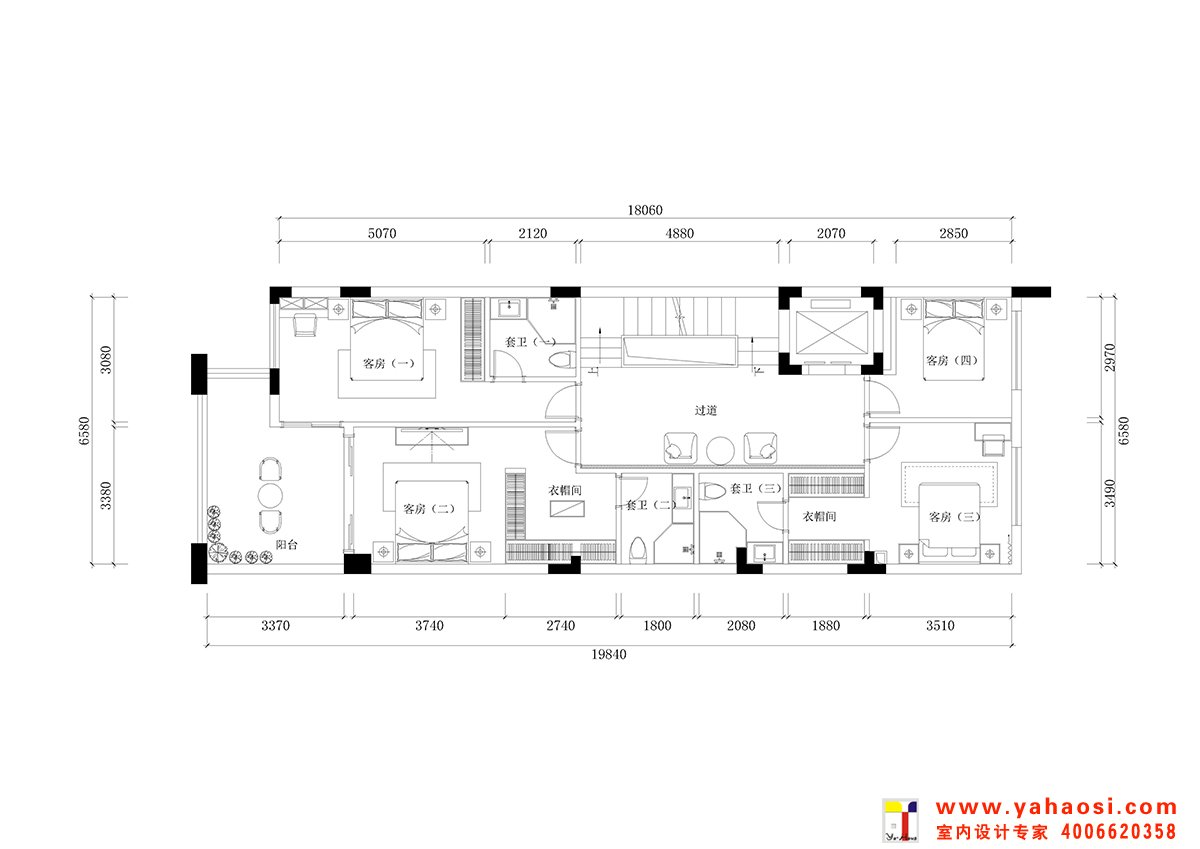
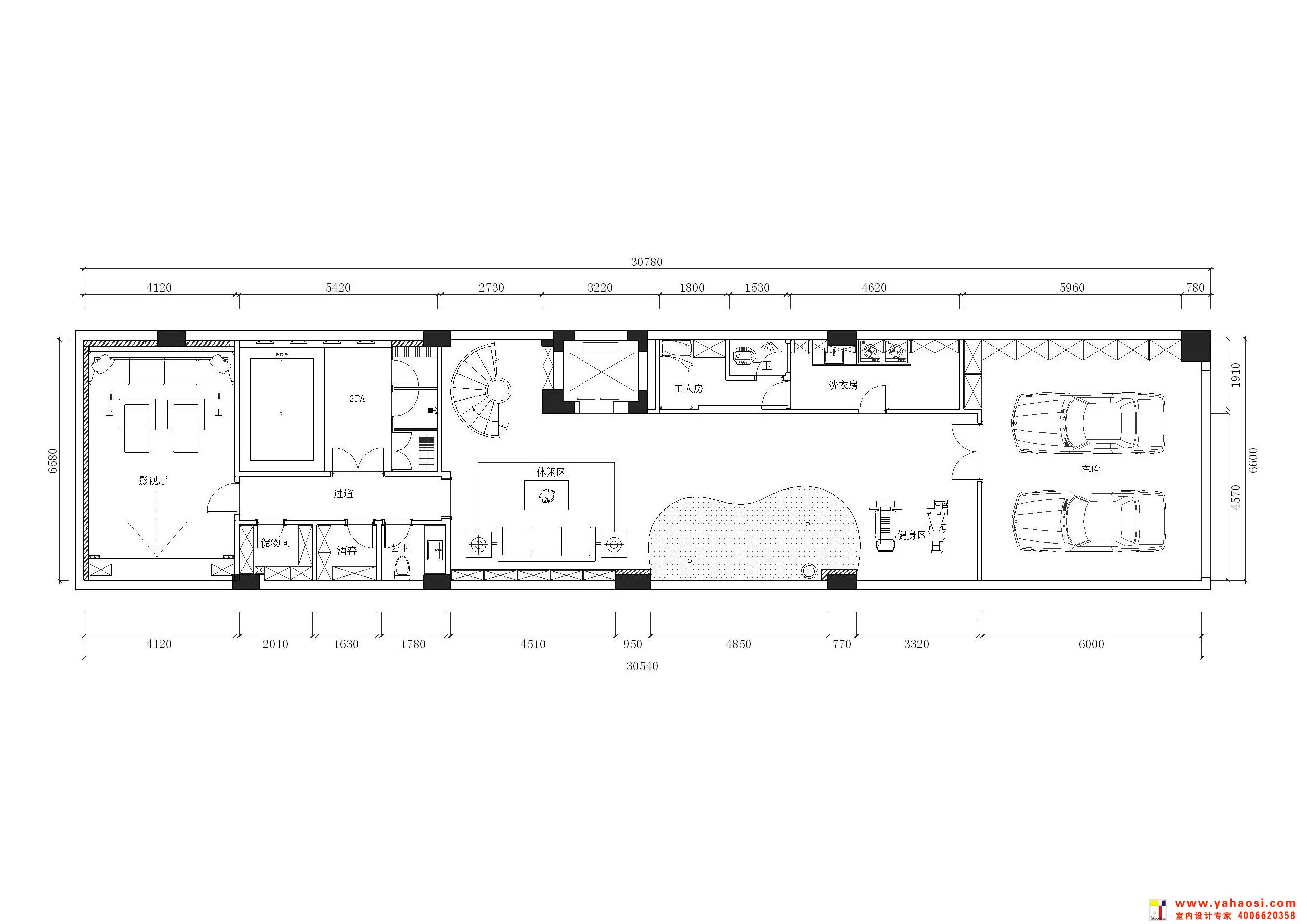
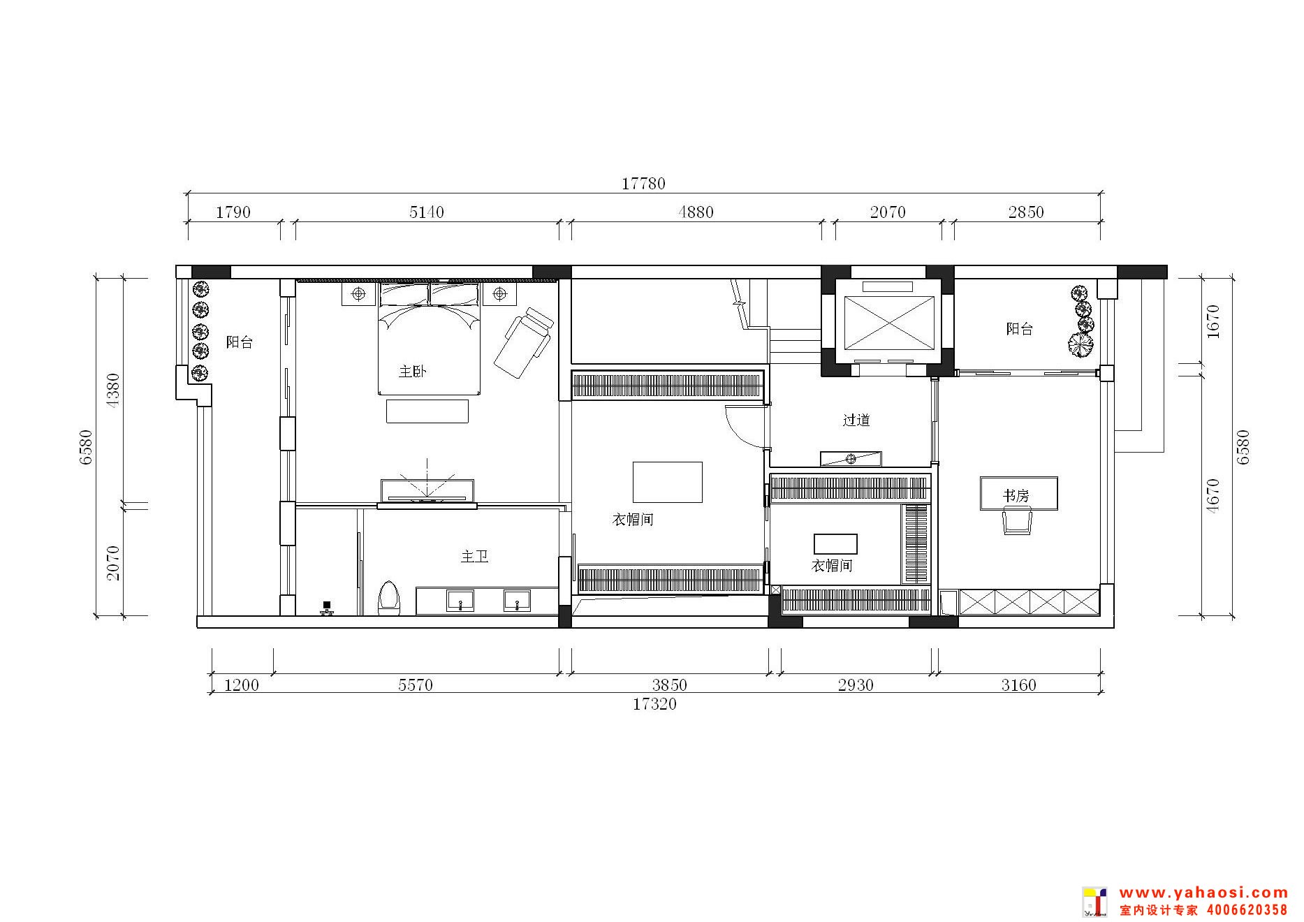
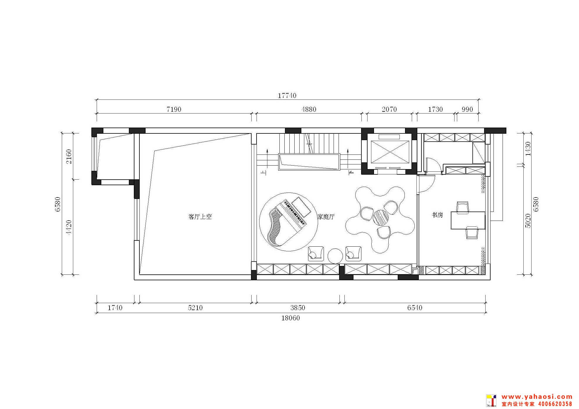
三湘海尚别墅设计案例










#p#副标题#e#



设计风格:现代简约
设计面积:700平方
设计说明:
     清晨,主人在慵懒的晨曦中醒来,主卧灰灰的绿,洗手间淡淡的蓝,一天的生活在生命的色彩中
展开。步入阳台,一杯温水,远眺海天一色,清香拂面。呼吸着新鲜的空气,品味着大自然的芬芳,
清晨如此迷人!
     早餐时间,长长的吧台边,孩子们调皮的喝着牛奶, 一边在吧椅上不安分的扭动着 不时有几
滴牛奶落在黑色的上 ,生活在嘻闹中无限温柔!
     餐后,男主人在书房沉浸于自己的世界里。孩子趴在门外地毯上专注的摆弄心爱的玩具,一杯
咖啡,一曲琴音,天伦之乐,此生足以。
     下午,客厅的沙发中,抱着最小的小公主,她还在给妈妈解释这动画片中的光头强。大孩子们
在兴奋的东奔西跑,偌大的客厅设计成了一家人的休闲舞台。
     傍晚,孩子们在各自的房间进入梦乡。淡淡的色调给于小朋友无尽的童趣与温馨。在负一层的
休闲室,男主人随意的挥动着球杆  ,享受着这刻的怡然自得。在SPA室的浴池中,女主人闭上眼
嗅着空气中的幽香  在朵朵花瓣里 、在点点烛光中沉醉 ………..
     生活如此美好!






#p#副标题#e#