欢迎大家光临广州室内设计公司领头羊金牛装修设计公司
室内设计行业新闻
这里是装修设计专家金牛装饰设计公司的网站栏目内容页
重庆恒大御景半岛别墅:东方米兰 艺术韵味的居家








#p#副标题#e#









#p#副标题#e#










#p#副标题#e#











#p#副标题#e#



重庆恒大御景半岛别墅:东方米兰 艺术韵味的居家说明:
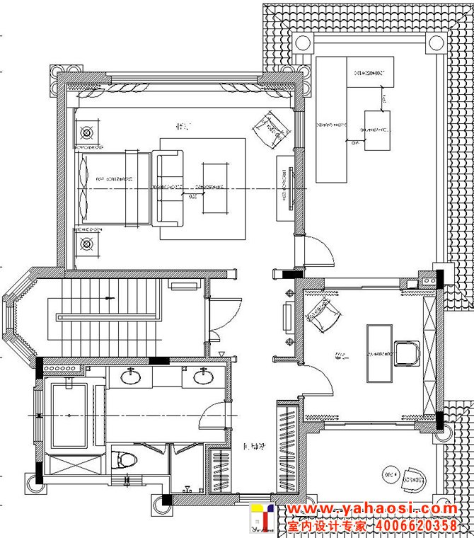
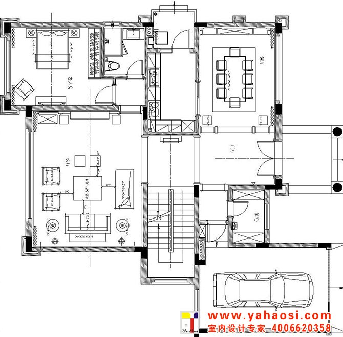
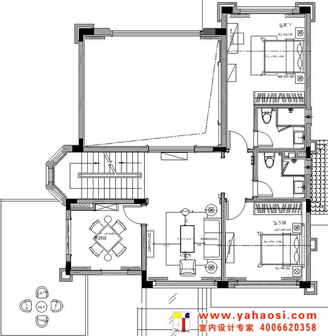
项目名称:重庆恒大御景半岛A4-4别墅
项目面积:425㎡
完成时间:2015年
风格调性:简欧与中式混搭
软装设计:百搭园软装
 
在这套425平米的别墅中,设计师延续了巴渝文化中心的悠久历史与稀缺的文化风情,巧妙地将西式
居住于中式现代相糅合,独具匠心,形成一座贵气优雅、别具内涵的住宅空间。整座别墅让生活习惯
与精神文化的相结合,完美体现了传统信仰与优雅风情的气质交融。
 
整个空间以深咖啡色及大地色系为主,搭配大量的湖蓝色及亮黄色,让空间呈现出丰盈的层次感。中
西方元素搭配,陈设品以陶瓷为主,再以恰到好处的绿植和花艺点缀,令整体环境优雅而又不乏生机。
 
走进客厅,似乎走进了东方的文化艺术馆。挑高层架构让整个客厅显得更加大气,湖蓝色的简欧沙发
成为整个空间的色彩中心。随后,无论是抱枕上的牡丹花、高高低低的陶罐还是墙上的挂画,都以这
个色彩进行延伸与呼应。除此之外,空间运用到了许多传统的中式元素,玄关的柜子上的青花、茶几
上摆放着的麒麟摆件、主背景墙上分别用蓝色的梅花挂画与金色挂件配以黄色花饰,将自然与艺术相
结合,让空间的东方美自然呈现。
 
餐厅延续了客厅湖蓝与亮黄的色彩搭配,白底青花图案的餐盘与金色的餐具搭配,朴实的东方情怀中
透露着奢华与贵气,桌上的小绿植和木雕松果,让这样一个略显秩序感的就餐环境,多了几分轻松与
亲切。餐厅入口处的两个立柜,后面的壁柜构成造景框,加上各种陶瓷及艺术品摆件,无疑是中式元
素的最好代表。
 
在二楼的空间,设置有主人房、书房、小会议厅、健身室、棋牌室、客房等空间。而设计师顺应了别
墅主人西式的生活习惯,并又热爱中式传统文化的信仰,采用简欧风格大床搭配具有弧形线条的沙发
和简约的柜子,配上祥云的挂画、陶瓷摆件、水墨山画地毯表达出主人享受现代生活的乐趣的同时也
追求传统文化。客房设计关照居者对生活广而大的需求,以欧式简约与现代中式的风格为基础环境,
利用床上用品、挂件、柜地毯的色彩来实现不同区域的区分,呈现空间丰沛的美学力量。
 
书房当然也是充满书香和水墨的气息,传统的剪纸挂画、中式现代的案台、沿墙面而设的书柜以及山
峦叠起的水画地毯……呈现极浓的书墨香。每个空间设计师都向生活和习惯找到生活真正的范本,并
且从中吸收忠实于现代生活的语言,让居家的奢华元素凝练为匹配财富阶层应有的生活方式。







上一篇:样板房

下一篇:重庆桃源居样板房B户型